Connectez-vous

Espace client MH&moi Sarthe

Je me connecte

Espace locataire 44, 49 et 85

Je me connecte
Thorigné sur Dué - 72
10 rue Trotte Hatton

Maison T5 93 000€

Retour à la liste
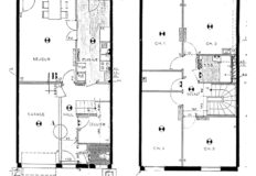
  • Rez-de-chaussée :
    Séjour
    Cuisine
    Cellier
    Toilettes
    Garage
  • Etage :
    4 chambres
    Salle de bains
    Dressing

Caractéristiques du bien à vendre

Résidence

  • Logement mitoyen

Détails

  • Proche des écoles

Prestations

  • Jardin
  • Garage

Performance énergétique

Diagnostic de performance énergétique (DPE)

d

Indice d'émission de gaz à effet de serre (GES)

d

Prêt à devenir propriétaire ?

Quelle que soit votre question, Mancelle d’habitation et sa filiale accession Union & Progrès sont à votre écoute et mettent tout en œuvre pour vous répondre dans les délais les plus courts. Merci d’utiliser en priorité le formulaire de contact.

Nous contacter