Connectez-vous

Espace client MH&moi Sarthe

Je me connecte

Espace locataire 44, 49 et 85

Je me connecte
Le Mans - 72
2 rue des Frères Renault

Maison individuelle T5 176 000 €

Retour à la liste

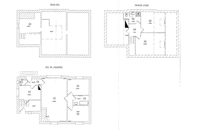
•Maison T5

•98 m² sur une parcelle de 1 024 m²

•Séjour salon

•Cuisine

•4 chambres

•Salle de bain et WC séparés

•Jardin privatif

•Sous-sol avec cave

Caractéristiques du bien à vendre

Résidence

  • Logement indépendant

Détails

  • Quartier pavillonnaire
  • À proximité d’une gare

Prestations

  • Jardin
  • Cave

Performance énergétique

Diagnostic de performance énergétique (DPE)

d

Indice d'émission de gaz à effet de serre (GES)

d

Prêt à devenir propriétaire ?

Quelle que soit votre question, Mancelle d’habitation et sa filiale accession Union & Progrès sont à votre écoute et mettent tout en œuvre pour vous répondre dans les délais les plus courts. Merci d’utiliser en priorité le formulaire de contact.

Nous contacter